Bản thiết kế nhà không đơn thuần là tập hợp các bản vẽ kỹ thuật mà còn là bước định hình toàn diện cho không gian sống trước khi thi công. Thông qua bản thiết kế, mọi yếu tố đều được tính toán rõ ràng, giúp hạn chế sai lệch và kiểm soát quá trình xây dựng hiệu quả hơn. Khi được đầu tư đúng ngay từ đầu, bản thiết kế sẽ quyết định phần lớn chất lượng và giá trị lâu dài của ngôi nhà.
1. Bản thiết kế nhà là gì?
Bản thiết kế nhà là hệ thống bản vẽ thể hiện toàn bộ ý tưởng và giải pháp cho một công trình trước khi thi công thực tế. Nó không chỉ mô tả cách bố trí không gian mà còn thể hiện cấu trúc, kích thước và các yếu tố kỹ thuật liên quan. Thông qua bản thiết kế, mọi chi tiết của ngôi nhà được định hình rõ ràng, giúp quá trình xây dựng diễn ra chính xác và hạn chế sai sót.
1.1 Khái niệm bản thiết kế nhà
Trong lĩnh vực xây dựng, bản thiết kế nhà được xem là nền tảng để hình thành và triển khai một công trình hoàn chỉnh. Nó bao gồm từ cách tổ chức kích thước, tỷ lệ cho đến các giải pháp kết cấu và hệ thống kỹ thuật bên trong công trình. Bản thiết kế đóng vai trò như “bản hướng dẫn” xuyên suốt quá trình xây dựng, giúp các bên liên quan hiểu rõ và triển khai đúng ý tưởng.


1.2 Các thành phần cơ bản trong bản thiết kế
Một bản thiết kế hoàn chỉnh được cấu thành từ nhiều lớp thông tin khác nhau, mỗi phần đảm nhiệm một vai trò riêng trong việc hình thành công trình. Phần mặt bằng định hướng cách bố trí không gian, trong khi bản vẽ kết cấu xử lý các vấn đề liên quan đến độ bền. Khi các thành phần này được phối hợp chặt chẽ, bản thiết kế sẽ trở thành nền tảng rõ ràng cho toàn bộ quá trình thi công.


1.3 Vai trò của bản thiết kế trong xây dựng
Trong quá trình xây dựng, bản thiết kế đóng vai trò như “kim chỉ nam” giúp định hướng mọi hạng mục từ lúc khởi công đến khi hoàn thiện. Nhờ có bản thiết kế, các thông số và phương án thi công được thể hiện rõ ràng, giúp hạn chế sai sót và đảm bảo tính chính xác. Đây cũng là cơ sở để các bên liên quan phối hợp hiệu quả, tránh chồng chéo trong quá trình thực hiện.


2. Các loại bản thiết kế nhà phổ biến hiện nay
Các loại bản thiết kế phổ biến hiện nay được phân chia theo mục đích sử dụng trong từng giai đoạn triển khai công trình. Mỗi loại bản vẽ đảm nhiệm một vai trò riêng, từ việc thể hiện cách tổ chức không gian, hình dung tổng thể cho đến xử lý các vấn đề kỹ thuật chi tiết. Khi kết hợp đầy đủ các loại bản thiết kế, công trình sẽ được kiểm soát tốt hơn về cả tiến độ lẫn chất lượng.
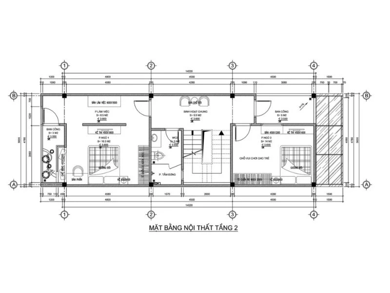
2.1 Bản vẽ mặt bằng công năng
Trong một bộ hồ sơ thiết kế, bản vẽ mặt bằng công năng giữ vai trò định hình không gian được sử dụng trong thực tế. Thông qua bản vẽ này, lối di chuyển và mối liên kết giữa các khu vực được thể hiện rõ ràng, giúp hình dung cách sử dụng thực tế của không gian. Đây cũng là cơ sở để điều chỉnh bố cục sao cho phù hợp với thói quen sinh hoạt của gia chủ.


2.2 Bản vẽ phối cảnh 3D
Trong quá trình thiết kế, bản vẽ phối cảnh 3D đóng vai trò như “bản mô phỏng” giúp hình dung rõ ràng không gian. Thay vì chỉ nhìn qua các bản vẽ kỹ thuật, gia chủ có thể cảm nhận cụ thể về tổng thể bố cục. Đây là bước giúp thu hẹp khoảng cách giữa ý tưởng và hình ảnh hoàn thiện của công trình.


2.3 Bản vẽ kết cấu và kỹ thuật
Bản vẽ kết cấu và kỹ thuật là phần cốt lõi trong bản thiết kế nhà, đảm nhiệm việc thể hiện toàn bộ hệ thống chịu lực và các giải pháp kỹ thuật. Nội dung này bao gồm chi tiết móng, cột, sàn cùng các thông số được tính toán chính xác để đảm bảo độ an toàn khi thi công. Đây là hạng mục quyết định trực tiếp đến độ bền, tính ổn định và tuổi thọ của công trình.


3. Bản thiết kế theo xu hướng thịnh hành
Trong bối cảnh thay đổi liên tục của nhu cầu sống, bản thiết kế theo xu hướng thịnh hành trong bản thiết kế nhà ngày càng đề cao tính linh hoạt và khả năng thích ứng với thực tế. Các phương án thiết kế thường hướng đến sự tinh gọn, dễ điều chỉnh và phù hợp với nhiều mục đích sử dụng khác nhau. Nhờ đó, bản thiết kế nhà không chỉ bắt kịp xu hướng mà còn đảm bảo giá trị cá nhân hóa cao và sử dụng lâu dài.
3.1 Nhà cấp 4
Nhà cấp 4 trong bản thiết kế nhà thường được định hướng theo tiêu chí gọn gàng, dễ triển khai và phù hợp với nhiều diện tích đất khác nhau. Không gian được tổ chức theo mặt bằng một tầng, ưu tiên sự liền mạch và thuận tiện trong sinh hoạt hằng ngày. Cách bố trí thường tập trung vào việc tận dụng tối đa diện tích để đảm bảo đầy đủ công năng mà không gây cảm giác chật chội.


3.2 Nhà ống
Nhà ống thường được xây dựng trên những khu đất có chiều ngang hẹp, vì vậy cách tổ chức không gian cần được tính toán kỹ để tránh cảm giác bí bách. Bố cục không gian thường phát triển theo chiều sâu, kết hợp thêm các khoảng thông tầng hoặc giếng trời để cải thiện ánh sáng và thông gió. Các khu vực chức năng được sắp xếp theo từng tầng, đảm bảo sự riêng tư nhưng vẫn thuận tiện trong sinh hoạt. Nhờ cách xử lý hợp lý, kiểu nhà này vẫn đáp ứng tốt nhu cầu sống trong môi trường đô thị.


3.3 Nhà mái Nhật
Nhà mái Nhật nổi bật với kiểu mái có độ dốc vừa phải, các lớp mái xếp chồng tạo cảm giác cân đối và thanh thoát cho tổng thể công trình. Thiết kế này thường ưu tiên sự hài hòa trong hình khối, không quá cầu kỳ nhưng vẫn đủ điểm nhấn để tạo ấn tượng. Phần mái giúp thoát nước tốt, phù hợp với nhiều điều kiện thời tiết khác nhau. Nhờ đó, kiểu nhà này được ưa chuộng bởi sự kết hợp giữa tính thẩm mỹ nhẹ nhàng và hiệu quả sử dụng thực tế.


3.4 Nhà mái lệch
Nhà mái lệch tạo ấn tượng mạnh nhờ cấu trúc mái không đối xứng, mang lại cảm giác chuyển động và phá vỡ sự đơn điệu trong hình khối kiến trúc. Thiết kế này thường tận dụng độ chênh của mái để tăng khả năng lấy sáng và thông gió tự nhiên cho không gian bên trong. Bên cạnh yếu tố thẩm mỹ, mái lệch còn giúp thoát nước nhanh và hạn chế đọng nước trên bề mặt.


3.5 Nhà mái Thái
Trong các kiểu kiến trúc phổ biến, nhà mái Thái trong bản thiết kế nhà luôn tạo ấn tượng nhờ phần mái dốc cao và hình khối rõ ràng. Kiểu mái này không chỉ giúp thoát nước nhanh mà còn góp phần điều hòa nhiệt độ bên trong, phù hợp với điều kiện khí hậu nóng ẩm. Bố cục kiến trúc thường kết hợp hài hòa giữa phần mái và thân nhà, tạo nên sự cân đối.


4. Các bản thiết kế nhà theo diện tích
Các bản thiết kế nhà theo diện tích được định hướng dựa trên quy mô không gian để đảm bảo cách bố trí phù hợp với thực tế sử dụng. Mỗi mức diện tích sẽ có cách xử lý khác nhau trong việc phân chia khu vực và tổ chức lối di chuyển. Không gian được cân nhắc sao cho vừa đủ, tránh cảm giác chật chội hoặc dư thừa. Việc thiết kế theo diện tích giúp định hình rõ cách triển khai ngay từ đầu và tạo sự ổn định trong quá trình sử dụng.
4.1 Nhà diện tích nhỏ
Nhà diện tích nhỏ đòi hỏi cách tổ chức không gian phải chặt chẽ và có tính toán rõ ràng ngay từ đầu. Các khu vực chức năng thường được sắp xếp liên kết với nhau để hạn chế lãng phí diện tích và tạo cảm giác liền mạch. Việc xử lý ánh sáng và thông gió cũng được chú trọng để không gian không bị bí bách. Khi bố trí hợp lý, dù diện tích hạn chế vẫn có thể đảm bảo thoải mái trong sinh hoạt.


4.2 Nhà diện tích trung bình
Nhà diện tích trung bình tạo điều kiện để không gian được phân chia rõ ràng hơn mà không bị gò bó như diện tích nhỏ. Các khu vực chức năng có thể được bố trí hợp lý theo nhu cầu sử dụng, đảm bảo sự thuận tiện trong sinh hoạt hàng ngày. Đồng thời, việc xử lý không gian cũng linh hoạt hơn trong việc tạo khoảng trống và lối di chuyển. Quy mô này thường phù hợp với nhiều mô hình gia đình và dễ dàng thích nghi theo thời gian.


4.3 Nhà diện tích lớn
Nhà diện tích lớn cho phép triển khai không gian theo hướng mở rộng và đa dạng hóa cách sử dụng từng khu vực. Thay vì tập trung tối ưu từng mét vuông, thiết kế ở quy mô này chú trọng đến cách tạo nhịp điệu không gian, phân lớp rõ ràng giữa các khu vực sinh hoạt. Những khoảng trống, hành lang hay không gian chuyển tiếp được khai thác để tăng trải nghiệm sử dụng.


5. Chi phí thiết kế nhà hiện nay
Mức chi phí thiết kế hiện nay trong bản thiết kế nhà thường được xác định dựa trên diện tích xây dựng và yêu cầu cụ thể của từng công trình. Đơn giá phổ biến dao động từ khoảng 140.000 – 300.000đ/m² đối với nhà phố và có thể cao hơn nếu thiết kế yêu cầu chi tiết hoặc kỹ thuật phức tạp.Việc đầu tư hợp lý cho bản thiết kế nhà ngay từ đầu giúp kiểm soát ngân sách và hạn chế phát sinh trong thi công.
5.1 Các mức giá thiết kế phổ biến
Các mức giá thiết kế phổ biến trong bản thiết kế nhà thường được phân chia theo cấp độ yêu cầu và độ chi tiết của hồ sơ. Ở mức cơ bản, chi phí tập trung vào bản vẽ công năng và kiến trúc tổng thể, trong khi các gói cao hơn sẽ bao gồm đầy đủ kết cấu, kỹ thuật và phối cảnh 3D. Với những công trình yêu cầu cao về thẩm mỹ hoặc cá nhân hóa, đơn giá thiết kế cũng sẽ tăng tương ứng. Sự chênh lệch giữa các mức giá phản ánh trực tiếp mức độ đầu tư vào chất lượng và tính hoàn thiện của bản thiết kế nhà.


5.2 Yếu tố ảnh hưởng đến chi phí thiết kế
Chi phí thiết kế nhà chịu ảnh hưởng bởi nhiều yếu tố khác nhau, từ quy mô công trình đến mức độ chi tiết của hồ sơ. Những công trình có diện tích lớn hoặc yêu cầu thiết kế phức tạp thường cần nhiều thời gian và công sức triển khai hơn, dẫn đến chi phí cao hơn. Bên cạnh đó, phong cách thiết kế, yêu cầu cá nhân hóa và tiêu chuẩn kỹ thuật cũng tác động trực tiếp đến đơn giá. Ngoài ra, năng lực và kinh nghiệm của đơn vị thiết kế cũng là yếu tố khiến chi phí có sự chênh lệch đáng kể.


5.3 Cách tối ưu chi phí hiệu quả
Việc tối ưu chi phí trong bản thiết kế nhà đòi hỏi cách tiếp cận có định hướng thay vì cắt giảm tùy ý. Cần lựa chọn giải pháp thiết kế phù hợp với quy mô và khả năng tài chính để tránh những điều chỉnh phát sinh về sau. Bên cạnh đó, việc chuẩn hóa hồ sơ ngay từ đầu giúp hạn chế sai lệch gây tốn kém. Khi có kế hoạch rõ ràng, bản thiết kế nhà sẽ hỗ trợ kiểm soát ngân sách một cách chủ động và hiệu quả hơn.


6. Kinh nghiệm lựa chọn đơn vị thiết kế uy tín
Lựa chọn đơn vị thiết kế uy tín trong bản thiết kế nhà cần dựa vào cách họ thể hiện năng lực qua sản phẩm thực tế và phương pháp làm việc. Một đơn vị chuyên nghiệp sẽ cho thấy sự rõ ràng trong từng bước triển khai, từ khâu tiếp nhận yêu cầu đến hoàn thiện hồ sơ. Cách họ xử lý chi tiết bản vẽ cũng phản ánh trực tiếp mức độ đầu tư và kinh nghiệm. Khi đánh giá kỹ những yếu tố này, bản thiết kế nhà sẽ được đảm bảo về tính chính xác và khả năng ứng dụng trong thi công.

7. Kết luận
Tổng thể, bản thiết kế nhà không chỉ dừng lại ở việc thể hiện ý tưởng mà còn là sự kết hợp giữa mặt bằng công năng, phối cảnh 3D và hệ thống kết cấu đã được triển khai xuyên suốt. Từ việc lựa chọn loại hình nhà, quy mô diện tích đến cách kiểm soát chi phí,mọi yếu tố đều cần được định hướng rõ ràng ngay từ đầu. Nhờ đó, bản thiết kế nhà trở thành nền tảng giúp công trình vận hành ổn định và đáp ứng nhu cầu sử dụng lâu dài.

Nếu các bạn cần tư vấn chi tiết cho bản vẽ riêng theo nhu cầu của bản thân, đừng ngần ngại liên hệ với Nội thất mộc Vũ Gia để được tư vấn nhanh nhất!
- Hotline: 0966.37.33.86 – 096.99.77.896
- Website: noithatvugia.com.vn
- Địa chỉ: Điếm số 8 – Vĩnh Ngọc – Đông Anh – Hà Nội



